Conception et Idées : Plan jardin vertical surface 45m2 circuit court
Envie de transformer votre extérieur ? Découvrez nos meilleures idées pour Plan jardin vertical surface 45m2 circuit court. Que vous ayez un grand terrain, un potager ou un petit balcon, ces plans et inspirations vous aideront à créer un espace vert unique et apaisant.

Source : Tennis Court Layout and Sections

Source : Gallery of Blue Court / Found Projects + Atelier Noirs - 18

Source : Plan de jardin : un outil essentiel pour votre aménagement extérieur

Source : Court Circuit - NA ! Architecture

Source : Tennis Court Floor Plan

Source : Court Layout and Surface Areas | LYVNA

Source : House Plan with Tennis Court

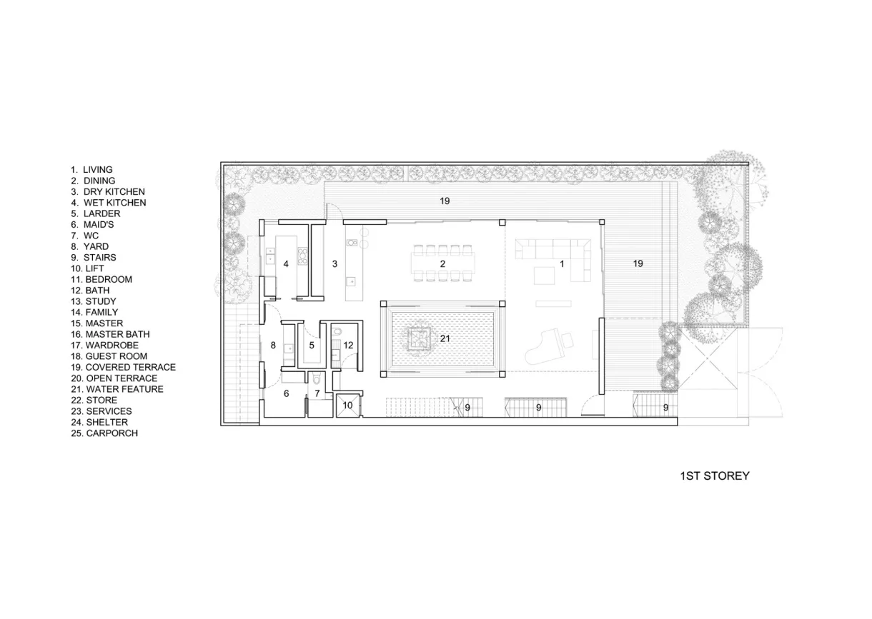
Source : First Floor Plan – Vertical Court Luxury Residence – Greenbank Park

Source : Comment aménager une allée de jardin ? - Dessine mon Jardin

Source : Le Corton - 45m2 - Parking - Jardin - Wifi, Cassis (updated prices 2025)

Source : Back Yard Court Dimensions
Nous espérons que ces modèles de Plan jardin vertical surface 45m2 circuit court vous donneront la main verte. N'hésitez pas à sauvegarder ces idées pour vos futurs projets d'aménagement !